Уютный жилой дом мансардного типа ждёт новых хозяев!
Дом расположен в посёлке Пригородном, на границе с посёлком Новосиликатным, где есть всё необходимое для комфортной жизни, школы, детские сады, поликлиники, магазины, Сбербанк и почта — всё в шаговой доступности. Остановка общественного транспорта находится всего в 200 метрах.
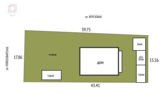
Дом площадью 118,2 м² (жилая площадь — 68,1 м²) включает 5 изолированных комнат и просторную кухню. Ремонт: ламинат, натяжные потолки, раздельный санузел с отделкой из кафеля.
Отдельная топочная оснащена современным двухконтурным газовым котлом «Аристон». Коммуникации: газ, центральное водоснабжение, трёхфазное электричество, канализация — местная (переливная яма).
Участок продуман до мелочей:
* два гаража, один из них с погребом;
* хоз.блок
* уютная осиновая баня с раздельными моечной и парилкой и уютной верандой;
* площадка для барбекю;
* небольшой огород и плодовые посадки (яблони, жимолость);
Территория благоустроена: широкие бетонированные дорожки, широкая отмостка вокруг дома и надёжный забор по периметру.
Удобный подъезд к участку.
Возможен разумный торг.
Записывайтесь на просмотр в любое удобное время — убедитесь сами в преимуществах этого предложения!





















































