Новый дом. Документы готовы.
ПОДХОДИТ ПОД СЕМЕЙНУЮ ИПОТЕКУ 6%, под сертификаты военный, ипотеку вторичного рынка.
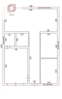
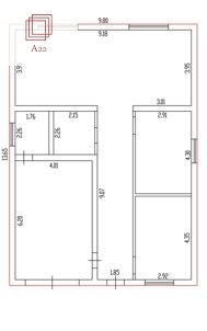
Просторная кухня-гостиная, две изолированные спальни – у каждого члена семьи будет свое личное пространство можем сделать 3 спальню, санузел.
Гараж для хранения авто с воротами.
Отдельная комната для котельной.
Погреб капитальный
Возможность обустроить 2 этаж,.
В доме выполнена чистовая отделка: стены подготовлены под обои.
Теплые полы по всему периметру дома, сделаны выводы для радиаторов.
Все коммуникации уже подключены:
Разводка электричества по дому, установлены розетки и выключатели. Свет подключен.
Газ заведен в дом, установлен котел, подключено отопление. Дом просушен.
Вода центральная заведена в дом.
Удобная транспортная доступность: общественный транспорт, 15 минут до центра города на машине.
Развитая инфраструктура: школа 2 мин на машине, 10 мин пешком дети ходят все сами, детский сад рядом.
Подходит под все виды расчетов.
Звоните, чтобы договориться о просмотре!













































