КЛЮЧИ ПОЛУЧЕНЫ !!!!! ОРГАНИЗУЕМ ПОКАЗ В ЛЮБОЕ ДЛЯ ВАС ВРЕМЯ !!!!
Готовы к комфорту и выгодным инвестициям?
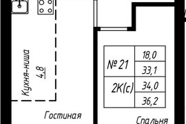
Представляем вашему вниманию евро 2-комнатную квартиру в самом центре города!
Это не просто квартира, это возможность жить в престижном районе, наслаждаясь абсолютным городским комфортом и отличной транспортной доступностью.
Преимущества, которые вы оцените:
- Дом СДАН! Никаких ожиданий – заходите и начинайте делать ремонт по своему вкусу!
- Идеальное Расположение: Центр города – это синоним престижа и удобства.
- Учебные заведения: Несколько престижных вузов и колледжей в шаговой доступности. Идеально для жизни студентов или как выгодная инвестиция под сдачу.
- Школы: Отличный вариант для семей с детьми, которым важна близость к образовательным учреждениям.
- Магазины и вся инфраструктура: Все необходимое – от продуктов до развлечений – в пределах нескольких минут ходьбы.
- Если остались вопросы ? звоните !





















































